Casa indipendente in vendita

Collevecchio, Via Piedicolle
€ 129.000
7 locali 7 locali
160 Mq 160 Mq
2 bagni 2 bagni

Casa indipendente in vendita

Collevecchio, Via Piedicolle

Descrizione annuncio

Nella Campagna di Collevecchio in Via Piedicolle, in posizione comoda e panoramica proponiamo in vendita casa indipendente con annessi e terreno.

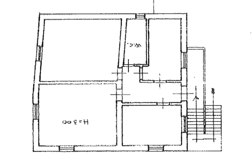
L’immobile di cui la parte abitativa misura circa 160 mq si sviluppa su due livelli e si compone di : Al piano terra, troviamo una taverna abitabile con camino, due cantine ed un bagno. Salendo al piano primo, vi è una cucina abitabile con camino, un soggiorno, due camere da letto matrimoniali ed un bagno.

Il punto forte della proprietà sono gli spazi esterni, comodi e sfruttabili.

Completano la proprietà due magazzini di circa 125 mq ed un terreno agricolo di un ettaro e mezzo.

Dati tecnici: infissi doppio vetro/PVC, riscaldamento con radiatori a Gas, fossa biologica, bombolone Gpl, acqua diretta.

Questa soluzione è l’ideale come prima casa, per chi desidera vivere a contatto con la natura, lontano dal rumore e dallo stress della città, avere spazi esterni per un orto, animali o semplicemente per rilassarsi all’aperto.

La proprietà dista 1 chilometro dal paese di Collevecchio e 15 chilometri dal casello autostradale A1 di Magliano Sabina. La stazione ferroviaria più vicina è quella di Poggio Sommavilla che si trova a 6,5 chilometri.

Mostra tutto

Nelle vicinanze

Farmacia Farmacia
Farmacia Comunale
2,8 Km
Supermercati Supermercati
Lidl
2,5 Km
Issimo
2,7 Km
Supermercati
3,0 Km
Negozi Negozi
Il Vecchio Forno
2,1 Km
Bar Bar
Bar
2,4 Km
Mostra tutto

Caratteristiche

Rif.:
61139856
Piano:
1 di 2 (Piano su più livelli)
Box:
1
Posti auto:
3
Balconi:
1
Camere da letto:
2
Mostra tutto
Prezzo Prezzo
€ 129.000
Rata mutuo Rata mutuo
€ 613 / mese
Spese annue Spese annue
€ 0
Proponi il tuo prezzoProponi il tuo prezzo

Classe Energetica

Questo immobile è esente da classe energetica
Anno di costruzione:
1967
Riscaldamento:
Autonomo
Tipo impianto:
A radiatori
Tipo alimentazione:
GPL

Ti interessa visionare l'immobile?

Fissa un appuntamento  Fissa un appuntamento

Richiedi informazioni

Clicca su Leggi per aprire l'informativa
* Questi campi sono obbligatori

Calcola il tuo mutuo

Semplice e senza impegno
Anticipo

( % )
Mutuo

( % )

pochi semplici passi

inserisci i tuoi dati
Questionario completato
Grazie per aver richiesto un appuntamento senza impegno con un nostro Consulente del Credito e Assicurativo.

Hai inserito correttamente tutti i dati necessari e a breve riceverai una e-mail con un link da convalidare per inviare i tuoi dati.
Affiliato
Grupposabinamagliano Srl
Via Flaminia km 63.900, 02046 Magliano Sabina (RI)

Il nostro staff


  • Matteo Papi
    Responsabile

  • Simona Ruggeri
    Coordinatrice
Via Flaminia km 63.900, 02046 Magliano Sabina (RI)
Zona: Magliano Sabina
Mostra su mappa
Affiliato
Grupposabinamagliano Srl
Via Flaminia km 63.900, 02046 Magliano Sabina (RI)

2026 Tecnocasa Franchising S.p.A. - P. IVA 08365160152 - Via Monte Bianco 60/A 20089 Rozzano (MI). Ogni agenzia ha un proprio titolare ed è autonoma. Privacy policy | Policy utilizzo | Cookie policy