Villa singola in vendita

Magliano Sabina, Vocabolo madonna degli angeli - Madonna Degli Angeli
€ 169.000
4 locali 4 locali
190 Mq 190 Mq
2 bagni 2 bagni

Villa singola in vendita

Magliano Sabina, Vocabolo madonna degli angeli - Madonna Degli Angeli

Descrizione annuncio

In una delle aree più ricercate di Magliano, proponiamo una delle ultime realizzazioni della zona: una casa di nuova costruzione che unisce il fascino del rustico autentico al comfort dell’abitare contemporaneo.

Qui, ogni ambiente è pensato per accogliere e far sentire subito “a casa”.

Appena si arriva, la vista si apre su un paesaggio panoramico e luminoso, che avvolge l’abitazione in una sensazione di serenità. La luce entra generosa dalle finestre e accompagna ogni momento della giornata.

All’interno, un ampio soggiorno invita alla convivialità, ai racconti, ai pomeriggi in famiglia.

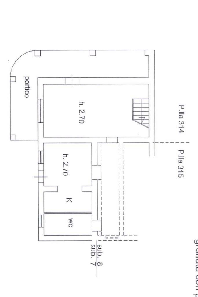
La cucina abitabile è uno spazio caldo, da vivere, perfetta per colazioni lente o per la preparazione di piatti condivisi.

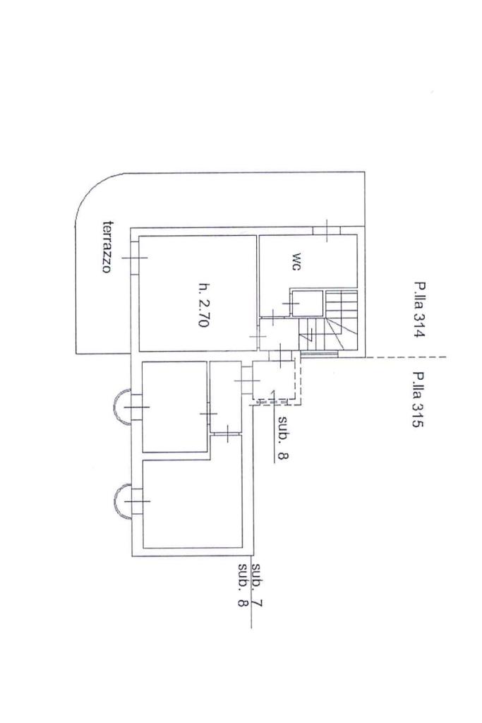
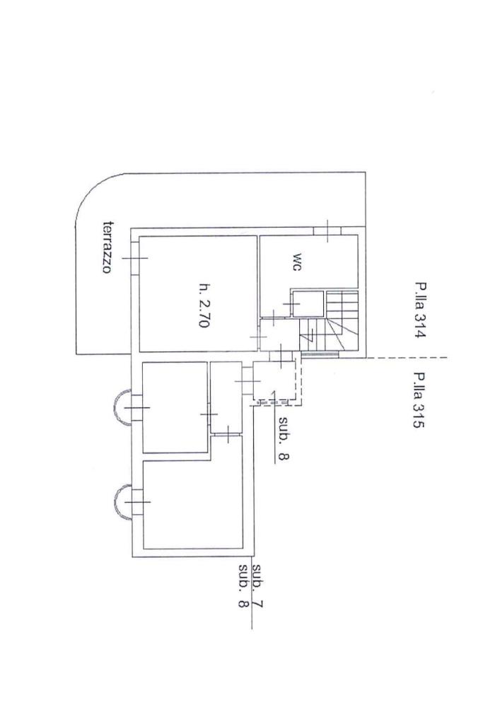
La zona notte offre due spaziose camere matrimoniali, intime e silenziose, oltre a una cameretta accogliente, perfetta per uno studio, una stanza giochi o una camera ospiti.

I due bagni, entrambi con doccia, sono pensati per il benessere quotidiano: luoghi dove concedersi piccoli momenti di calma.

A completare la proprietà, un balcone che regala scorci suggestivi e un portico ampio, ideale per vivere l’esterno come un’estensione naturale della casa: cene d’estate, letture all’aria aperta, chiacchiere condivise con chi si ama.

Questa casa è un invito a vivere bene, nel calore della tradizione e nella comodità del moderno, in un luogo dove ogni giorno può iniziare con una vista che riempie gli occhi e il cuore

Completa la proprietà un terreno di circa 4.000 mq.

Dati tecnici: infissi doppio vetro/PVC, riscaldamento a radiatori Gpl, acqua diretta, fossa biologica.

La proprietà dista 6 chilometri dal centro di Magliano e da tutti i principali servizi. La stazione più vicina è quella di Civita Castellana-Magliano con tratta Orte-Fiumicino Aeroporto che si trova a 10 chilometri.

Mostra tutto

Nelle vicinanze

Trasporto pubblico Trasporto pubblico
Trasporto pubblico
2,4 Km
Ricariche auto elettriche Ricariche auto elettriche
Magliano Sabina Cimitero | EnelX
2,1 Km
Magliano Sabina Supercharger
2,3 Km
EnelX EVA+ Magliano Sabina
2,3 Km
MAGLIANO SABINA Viale XIII Giugno | ENELX
2,4 Km
Eneldrive Crispi
2,6 Km
Scuole Scuole
Scuole
2,2 Km
Farmacia Farmacia
Farmacia Poiana
2,6 Km
Ospedali Ospedali
Presidio Marzio Marini
1,3 Km
Supermercati Supermercati
Supermercati
1,6 Km
Hurrà Supermarket
2,4 Km
Negozi Negozi
Marciani
380 m
Negozi
2,6 Km
Bar Bar
Bar
1,8 Km
Monkeys Bar
2,5 Km
Bar Roma
2,6 Km
Malillo
2,7 Km
Ristoranti Ristoranti
Ristorante degli Angeli
380 m
Ristorante Sabina
2,0 Km
La Pergola
2,4 Km
Ristoranti
2,4 Km
Da Carlo
2,7 Km
Mostra tutto

Caratteristiche

Rif.:
61132501
Piano:
1 di 2 (Piano su più livelli)
Posti auto:
2
Balconi:
2
Terrazzi:
1
Camere da letto:
3
Mostra tutto
Prezzo Prezzo
€ 169.000
Rata mutuo Rata mutuo
€ 796 / mese
Spese annue Spese annue
€ 0
Proponi il tuo prezzoProponi il tuo prezzo

Classe Energetica

Questo immobile è esente da classe energetica
Anno di costruzione:
2004
Riscaldamento:
Autonomo
Tipo impianto:
A radiatori
Tipo alimentazione:
GPL

Ti interessa visionare l'immobile?

Fissa un appuntamento  Fissa un appuntamento

Richiedi informazioni

Clicca su Leggi per aprire l'informativa
* Questi campi sono obbligatori

Calcola il tuo mutuo

Semplice e senza impegno
Anticipo

( % )
Mutuo

( % )

pochi semplici passi

inserisci i tuoi dati
Questionario completato
Grazie per aver richiesto un appuntamento senza impegno con un nostro Consulente del Credito e Assicurativo.

Hai inserito correttamente tutti i dati necessari e a breve riceverai una e-mail con un link da convalidare per inviare i tuoi dati.
Affiliato
Grupposabinamagliano Srl
Via Flaminia km 63.900, 02046 Magliano Sabina (RI)

Il nostro staff


  • Matteo Papi
    Responsabile

  • Simona Ruggeri
    Coordinatrice
Via Flaminia km 63.900, 02046 Magliano Sabina (RI)
Zona: Magliano Sabina
Mostra su mappa
Affiliato
Grupposabinamagliano Srl
Via Flaminia km 63.900, 02046 Magliano Sabina (RI)

2026 Tecnocasa Franchising S.p.A. - P. IVA 08365160152 - Via Monte Bianco 60/A 20089 Rozzano (MI). Ogni agenzia ha un proprio titolare ed è autonoma. Privacy policy | Policy utilizzo | Cookie policy