Casa semindipendente in vendita

Otricoli, Strada flaminia
€ 150.000
5 locali 5 locali
260 Mq 260 Mq
5 bagni 5 bagni

Casa semindipendente in vendita

Otricoli, Strada flaminia

Descrizione annuncio

Proponiamo in vendita locale commerciale di 260 mq , situato lungo la Strada Statale Flaminia, nel Comune di Otricoli.

L’edificio, di ampia metratura complessiva, si presenta in ottime condizioni manutentive e gode di una posizione comoda e ben visibile sulla strada principale.

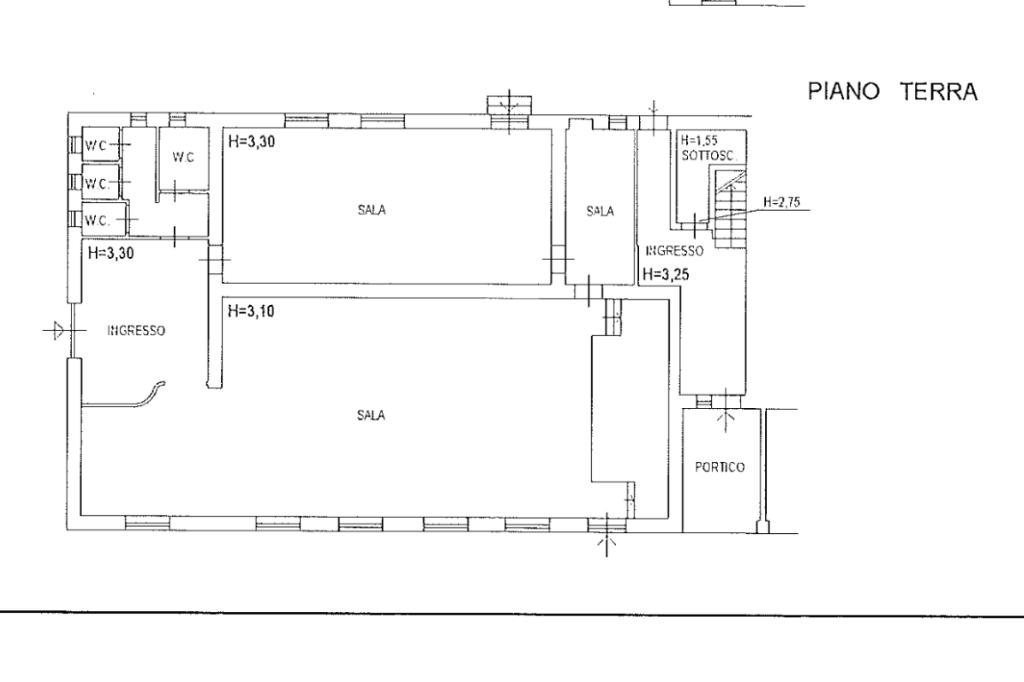
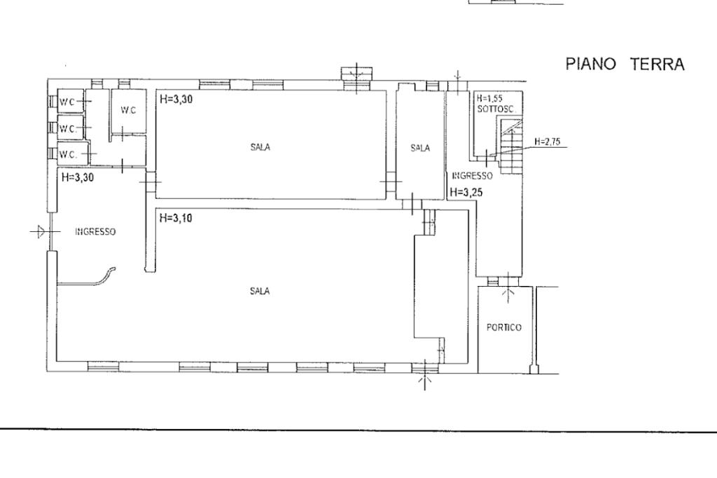
L’immobile si sviluppa su tre livelli: Al piano terra: ampio ingresso principale, due grandi sale adibite a locali di riunione o attività collettive, un vano servizi con quattro bagni, ulteriore sala e un secondo accesso indipendente. Al piano primo: locali attualmente utilizzati come abitazione di servizio, con cucina, due sale, bagno e terrazzo. Salendo al secondo piano vi è soffitta con altezze variabili, utile come locale di deposito o archivio.

L’edificio è circondato da una spaziosa area esterna pertinenziale, completamente recintata e in parte pavimentata, idonea ad accogliere aree di sosta o spazi per attività all’aperto.

Grazie alla generosa superficie interna, alla versatilità degli ambienti e alla facilità di accesso da strada, la proprietà si presta a diversi utilizzi compatibili con la sua destinazione urbanistica.

Mostra tutto

Nelle vicinanze

Scuole Scuole
Scuola Media Giacomo Leopardi
190 m
Scuole
310 m
Supermercati Supermercati
Supermercati
140 m
Bar Bar
Il Casottino
1,2 Km
Ristoranti Ristoranti
Ristoranti
1,4 Km
Mostra tutto

Caratteristiche

Rif.:
61154198
Piano:
1 di 2 (Piano su più livelli)
Posti auto:
5
Balconi:
1
Camere da letto:
2
Arredamento:
Assente
Mostra tutto
Prezzo Prezzo
€ 150.000
Rata mutuo Rata mutuo
€ 707 / mese
Spese annue Spese annue
€ 0
Proponi il tuo prezzoProponi il tuo prezzo

Classe Energetica

Questo immobile è esente da classe energetica
Anno di costruzione:
1967
Riscaldamento:
Autonomo
Tipo impianto:
A radiatori
Tipo alimentazione:
Metano

Ti interessa visionare l'immobile?

Fissa un appuntamento  Fissa un appuntamento

Richiedi informazioni

Clicca su Leggi per aprire l'informativa
* Questi campi sono obbligatori

Calcola il tuo mutuo

Semplice e senza impegno
Anticipo

( % )
Mutuo

( % )

pochi semplici passi

inserisci i tuoi dati
Questionario completato
Grazie per aver richiesto un appuntamento senza impegno con un nostro Consulente del Credito e Assicurativo.

Hai inserito correttamente tutti i dati necessari e a breve riceverai una e-mail con un link da convalidare per inviare i tuoi dati.
Affiliato
Grupposabinamagliano Srl
Via Flaminia km 63.900, 02046 Magliano Sabina (RI)

Il nostro staff


  • Matteo Papi
    Responsabile

  • Simona Ruggeri
    Coordinatrice
Via Flaminia km 63.900, 02046 Magliano Sabina (RI)
Zona: Magliano Sabina
Mostra su mappa
Affiliato
Grupposabinamagliano Srl
Via Flaminia km 63.900, 02046 Magliano Sabina (RI)

2026 Tecnocasa Franchising S.p.A. - P. IVA 08365160152 - Via Monte Bianco 60/A 20089 Rozzano (MI). Ogni agenzia ha un proprio titolare ed è autonoma. Privacy policy | Policy utilizzo | Cookie policy